Page suivante
Page précédente
Béziers (34500)

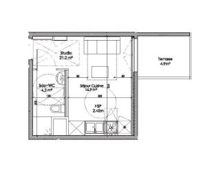
Appartement 1 pièce(s) 21.2 m²

1
Ascenseur
295 € CC*
Réf GES25090088-177
BEZIERS STUDIO POLYGONE - En exclusivité chez CL Conseils. Au coeur du nouveau quartier d'affaires, Résidence Neuve : Ermengaud Joli studio, norme Basse Consommation Énergétique, Résidence sécurisée, terrasse avec belle exposition et jolie vue. Le bien est soumis au statut de la copropriété. Loyer de 295,00 euros par mois charges comprises dont 46,00 euros par mois de provision pour charges (soumis à la régularisation annuelle). Les honoraires charge locataire sont de 233,20 euros ( soit 11,00 euros/m² ) dont 63,60 euros pour état des lieux ( soit 3,00 euros/m² ). DPE ANCIENNE VERSION.

Bilan énergétique

Diagnostics énergetiques
Consommation énergétique
A B C D E F G
Emission de gaz à effet de serre
A B C D E F G
DPE en cours
A propos de ce bien Caractéristiques de ce bien
  • Surface 21,20 m²
  • séjour 16,90 m²
  • 1 salle(s) d'eau
  • Chauffage individuel : convecteur (electrique)
  • exposition Sud-Est
  • 6 niveau(x)
  • 3ème étage
  • ascenseur
  • quartier Polygone

Financier

Informations financières
Loyer CC* / mois 295 €
Honoraires TTC charge locataire 233,20 €
Dont état des lieux 63,60 €
Dépôt de garantie TTC 249 €
Charges locatives (Previsionnelles mensuelles les avec regularisation annuelle) 46 €

* CC : Charges comprises