Page suivante
Page précédente
Maraussan (34370)

Villa 3 pièce(s) 2 chambre(s) 79.47 m²

1
1
171 000 €
Réf TEVVI560002846

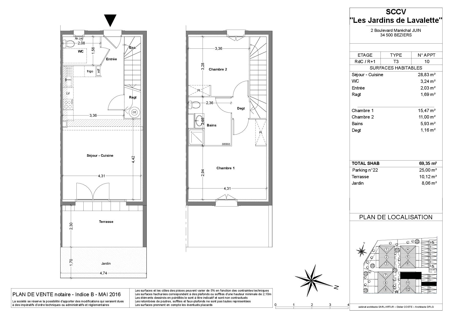
CL CONSEILS By La Toile immobilière vous présente cette agréable villa mitoyenne en duplex de 69,35 m², située dans une résidence calme à Maraussan, proche de l’école et bénéficiant d’un accès rapide à la rocade desservant l’autoroute et les plages.

Au rez-de-chaussée, vous trouverez une entrée avec rangement, une cuisine semi-équipée ouverte sur le séjour, donnant directement sur une terrasse et un jardin privatif.

L’étage accueille deux chambres avec placards intégrés, ainsi qu’une salle d’eau avec WC.

Côté confort : double vitrage, chauffage, bon état général, charges faibles, et la maison est encore sous garantie décennale. Vous bénéficiez en plus de deux places de stationnement en enfilade.

Un bien au calme, fonctionnel et plein de charme, idéal pour une résidence principale ou secondaire.

Contactez-nous pour plus d'informations !

Bilan énergétique

Diagnostics énergetiques
Consommation énergétique
A B C D E F G
Emission de gaz à effet de serre
A B C D E F G

Montant estimé des dépenses annuelles d'énergie de ce logement pour un usage standard est compris entre 450 € et 630 € . 2021 étant l'année de référence des prix de l'énergie utilisés pour établir cette estimation.

A propos de ce bien Caractéristiques de ce bien
  • Surface 79,47 m²
  • 2 chambre(s)
  • 1 salle(s) d'eau
  • construit en 2017
  • Chauffage individuel : radiateur (electrique)
  • 1 parking(s)
  • exposition Est
  • 1 niveau(x)
  • terrasse

Composition

Composition de ce bien

Rez-de-chaussée

  • sejour-cuisine 28.83 m²
  • WC 3.24 m²
  • entrée 2.03 m²
  • rangement 1.69 m²
  • degagement 1.16 m²
  • terrasse 10.12 m²
  • jardin 8.06 m²

Etage 1

  • chambre 15.47 m²
  • chambre 11 m²
  • Salle d'eau 5.93 m²

Financier

Informations financières
Prix de vente honoraires TTC inclus 171 000 €
Prix net vendeur 160 000 €
Prix de vente honoraires TTC exclus 160 000 €
Honoraires TTC à la charge acquéreur 6,88 %
Charges 33,49 €
Taxe foncière annuelle 1 117 €

Simulation

Calcul des mensualités
* Champs obligatoires
Claire THOMAS Négociatrice